O João Pessoa é um empreendimento que existe há 45 anos em Porto Alegre. Inaugurado em 4 de dezembro de 1970, é o primeiro shopping do Rio Grande do Sul e o terceiro do país. Com revitalização sendo realizada desde abril de 2015, com participação da Cabistani, o empreendimento possui mais de 14.000 m2 de área construída.
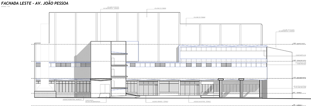
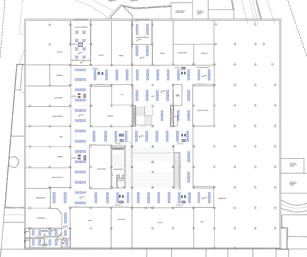
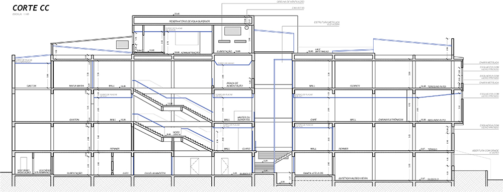
Foram necessários os levantamentos topográficos da área e do seu entorno, para estudos de integração urbanística, para a mobilidade urbana adequada e acessos. Também foi realizado o As Built de toda a construção, pavimento por pavimento.
A partir deste levantamento de dados, foram produzidas plantas baixas, cortes e fachadas, além das principais instalações. O Shopping utilizou-se desta base de levantamentos para a sua mais recente reforma.
Rua Correa Lima, 1172
Santa Tereza - Porto Alegre - RS
